•  Rúa Escultor Ferreiro, 21 - Bajo - 15200 Noia - A Coruña.

Buscador de inmuebles

Casa en noia en compra por 300.000,00 €

  • Referencia C-328
  • Modalidad: Compra
  • Estado: En construcción
  • Superficie: 330,0 m2
  • Localidad: Noia
  • Dirección: A Baia

Descripción

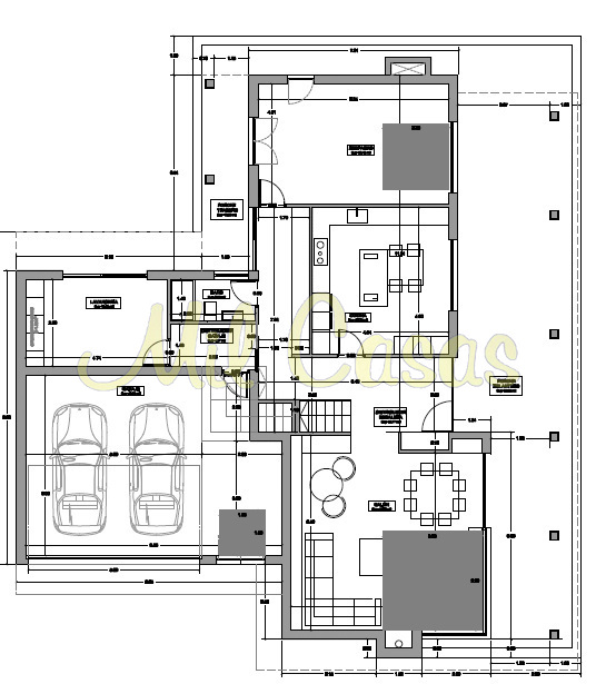
En el lugar de A Baia - Noia, se vende casa en construcción (330 m2), sobre una finca de 2.000 m2.

Planta baja (200 m2): garaje, baño, salón, cocina, habitación y un hueco de 13 m2.

Planta primera (118 m2): 3 dormitorios muy grandes, 2 baños y un hueco de 10 m2.

Dos porches. Vistas al mar y a la montaña. Zona elevada y tranquila.

La casa se vende así como está, sin terminar.

Formulario para solicitar más información